
Široký sortiment

Rychlé dodání

Poradíme
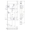
Bezpečnostní zadlabací dveřní zámek pro vložku
S převodem, zvýšenou odolností proti překonání
dvouzápadový
Nastavitelný pro pravé, nebo levé dveře.
Rozteč 90 mm
Hloubka celková 80 mm
Hloubka na osu (dornmass) 50 mm
Čelní lišta 230x22 mm
povrch: Bílý pozink
Doplňkové parametry
| Kategorie: | řada 90/80 |
|---|---|
| Záruka: | 2 roky |
| Hmotnost: | 0.75 kg |
| EAN: | 8595087545763 |
Buďte první, kdo napíše příspěvek k této položce.
Přidat komentář
